
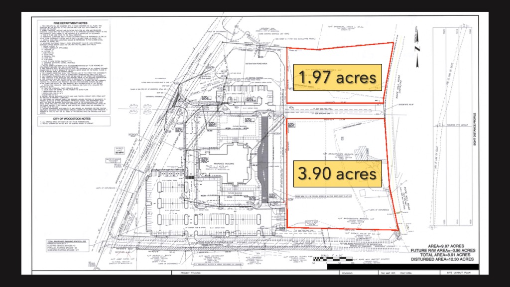
UPDATED! What is the status on the land contract for the adjacent parcels?
The two parcels adjacent to the east side of our building site (outlined in red below) had been secured by an option contract between the church and the owner for the last seven years. The contract was set to expire at the end of March with no option to extend. As you can see on the site plan below, if the church did not have access to that land in the future, it would eliminate the possibility for expansion beyond our current site.
Once again, the Lord graciously provided for FCC. A few members of our church formed a LLC, pooled their resources, and worked with the church, the bank and the owner to purchase the land. In turn, the church has a contract to purchase the land from the LLC in a few years after we complete our initial building project.

For more details, see the Video FAQs #2 here.
UPDATED! How is the church doing financially through the COVID-19 crisis?
In spite of the extraordinary economic impact of the COVID-19 pandemic on the nation, the Lord has been so gracious in continuing to provide for the ministries of Faith Community Church. Here is consolidated income statement comparing 2019 and 2020:

We continue to thank the Lord for His kind provision! For more details on all of this, see the Video FAQs #2 here.
UPDATED! Has/will anything change on the overall building design?
The current building footprint and planned square footage will remain unchanged. In addition, our objective is to preserve the overall aesthetic of the building through creative and strategic budgetary decisions about interior and exterior materials and finishes. See the next FAQ for more details on this.
We are now very focused on getting into the building at the earliest possible date. In order to do this, we have identified various exterior building features that can be added after we complete the initial construction (add alternates).
One example of an add alternate that is easy to envision is the steeple. The building will be designed structurally for a steeple as shown in the renderings. However, we will likely choose to leave the steeple off of the initial construction phase to save money. We will then add the steeple at a later date as part of a separate project.

Although it is not part of the building design, landscaping is another example of an exterior project feature that we have identified as an add alternate item. By waiting on the installation of the steeple and reducing our initial landscape scope, we will save over $300,000 in initial project costs.
For more details on all of this, see the Video FAQs #3 here.
UPDATED! Will the entire building be finished out before we move in?
The short answer is now a definite NO.
We have seen construction budget estimates from general contractors (GC) as high as $10.6 million with ALL of the proverbial “bells and whistles.” Based upon our current set of drawings, the most recent budget estimate we received from our selected GC was $8.3 million. If you add an additional $200,000 in remaining soft costs, a fully finished building would cost approximately $8.5 million.
After a lot of diligent value engineering and hard decision-making about add alternates, we have reduced the construction budget down to $6.5 million – which equates to $215 per square foot. Since our objective is to occupy our own facility as soon as possible, we have decided to only finish enough of the interior of the building so that ALL of the spaces can be occupied and used for regular church activities.
What this means is that many of the interior spaces in the building will have a bit of a “rough” unfinished look to start. Things like paint, trim work, cabinetry, floor coverings, etc. will need to be completed as funds become available after we move into the building.
For more details on all of this, see the Video FAQs #3 here.
UPDATED! How much have we spent on the project so far?
So far, we have invested approximately $3.6 million in land acquisition, architectural/engineering, site work and various soft costs. The funds for all of these costs have been graciously provided by the Lord through the generosity of His people at FCC. See below for a breakdown:

For more details on all of this, see the Video FAQs #4 here.
UPDATED! Will we need to raise more money to complete the building?
The short answer is, yes.
Over the last 3 years, average annual giving to the Building Faith fund has been about $330,000. Based upon our preliminary estimates, it looks like we will need to continue, or slightly exceed our historical $330K/year average in 2021 and 2022 in order to complete the project according to the updated timeline.
We will be presenting more details about Building Faith giving goals for 2021-2022 very soon, and we will continue to trust the Lord to provide according to his wisdom and purpose for FCC.
For more details on all of this, see the Video FAQs #4 here
UPDATED! What is the status on the construction loan?
As we previously reported, the COVID-19 pandemic injected significant uncertainty into our economy, and this had a particularly adverse effect on our discussions with the bank. In September of last year, we said the following:
The overall economic outlook could be quite different in early spring of 2021 when we plan to finalize our construction financing.
We are pleased to report that the passage of time indeed helped to settle some of the economic concerns held by financial institutions, but it also helped us in an important way. In a year fraught with many unsettling challenges, the Lord graciously provided for our church and allowed us to close out 2020 in a stronger financial position than the previous year. The financial statements we were able to submit to the bank demonstrated the sustaining kindness of the Lord.
The updated timeline below illustrates all of this in greater detail:
- May 2018 – Initial bank approval for $5M loan w/ $300K operating capital requirement
- Sept. 2019 – Favorable discussions with bank re: improved FCC financials and potential loan increase to $5.8M
- Feb. 2020 – Bank requests updated FCC financial package to reflect all of 2019
March 2020 – COVID 19 SHUTDOWN BEGINS
- June 2020 – Additional documents and Q1 2020 financial statements requested from and sent to bank
- July 2020 – Loan approval capped at $5M with increase to $500K operating capital requirement
In early March 2021, we received a new term sheet from the bank proposing a $6 million construction loan!
With this great news we can now plan and proceed with greater clarity regarding funding sources for the project. We know that Building Faith giving will need to continue throughout the construction process. Having this new loan amount will help us to set clear giving goals for 2021-2022 that will be presented to the congregation very soon.
UPDATED! When will the actual building construction begin?
The simple and most accurate answer to that question STILL is…
“As soon as the final construction plans are complete, the construction permit has been issued, and sufficient funding is in place.”
BUT…
We have nearly completed the value engineering phase and we believe we have a workable construction budget. This enables us to confidently move forward with the final drawings required for permitting and construction. In addition, our financing options have significantly improved, so the updated timeline below is fully informed by these important milestones.

Once we have a permit and our financing is in place, the actual contruction phase is forecasted to take 11-12 months. The timeline above would put our construction start date in September 2021 with a projected completion date in August 2022.
For more details, see the Video FAQs #4 here.
How long will the construction process take?

Every General Contractor who bid on our project gave us a construction timeframe of 11 months. We are bumping that up to 12 months for our planning.
Will the the church offices be located at the new building?
Unfortunately, no.
After laying out our space needs for Sunday and weekday worship, Bible study, and nursery, there was not enough functional square footage remaining for office space. Thankfully, the Lord allowed us to purchase our current office building and it serves us well. In addition, it has become a very good investment for the church, significantly appreciating in value and generating rental income at full occupancy.

We will continue to explore ways we can relocate our office onto the new property, sooner than later, but we may need to remain at our current building until a future “phase 2” building is constructed.